VOM FOTO ZUM EXPOSÉ
Dieses Projekt demonstriert die Transformation veralteter Bestandsunterlagen in moderne, digitale Assets.

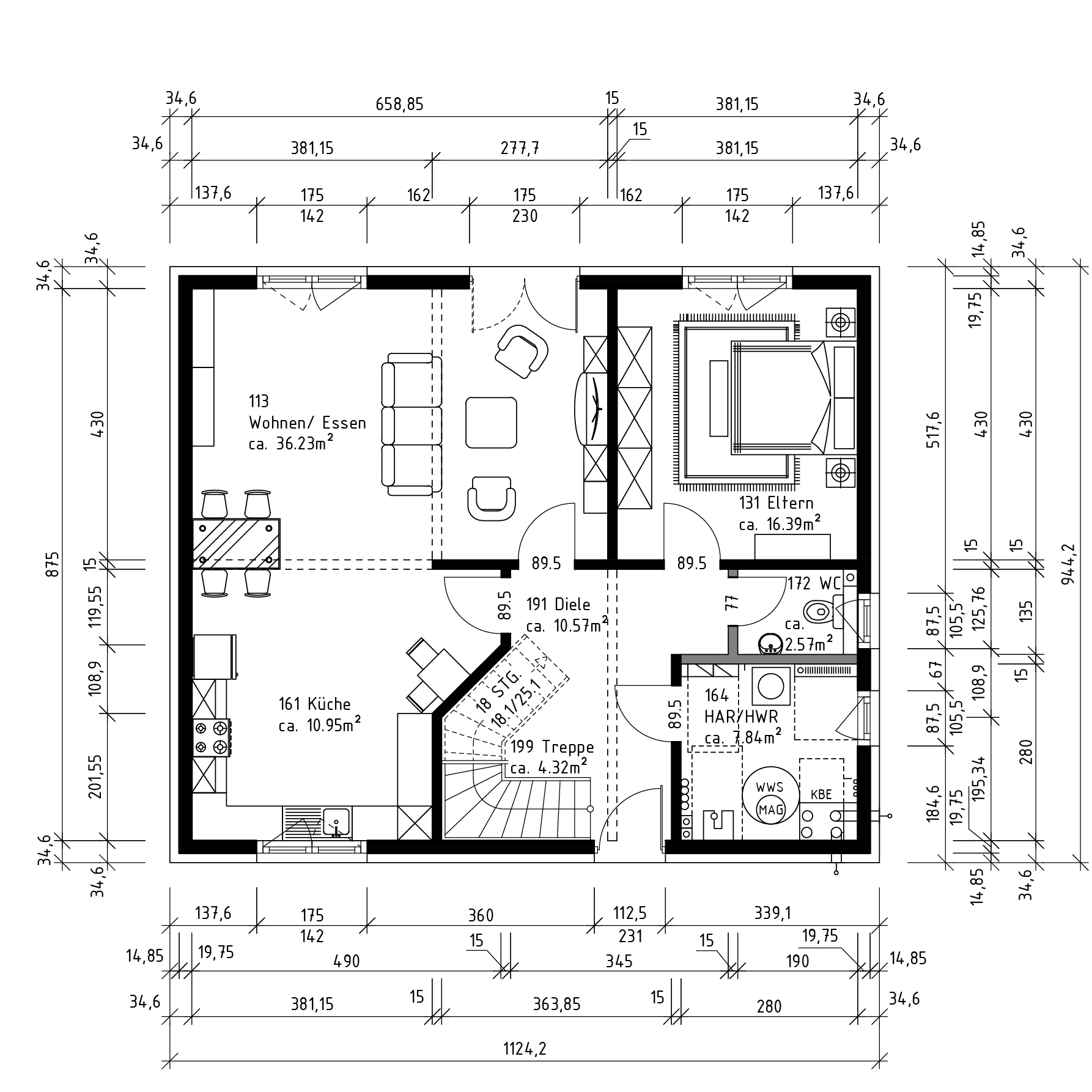
Die Herausforderung: 
Ein perspektivisch verzerrtes Foto eines Plans als einzige Quelle.

Meine Lösung:
1. Technische Rekonstruktion: Maßstabsgetreue Neuerstellung in AutoCAD unter strikter Einhaltung der Maßordnung im Hochbau (DIN 4172). Integration der Haustechnik und präzise Flächenermittlung.
2. Marketing-Veredelung: Grafische Aufbereitung in Adobe Illustrator mit realistischen Texturen, Lichteffekten und Schattenwurf für eine emotionale Immobilienpräsentation.
Technische Rekonstruktion

Präzision im Detail

Marketing-Visualisierung: Texturen & Schatten für das Exposé

Premium 3D-Visualisierung: Stimmung & Details

Atmosphärische 3D-Impression: Stimmung & Details

❖ Software: AutoCAD 2026, Adobe Illustrator.
❖ Standards: DIN 4172 (Konstruktion), WoFlV (Flächenberechnung).
❖ Lieferumfang: DWG (CAD), PDF (Druckfertig 1:100), PNG (Marketing).
Haben Sie ebenfalls veraltete Pläne, die eine digitale Auffrischung benötigen? Lassen Sie uns gemeinsam Klarheit in Ihr Projekt bringen.

Weitere Projekte

Back to Top